Error message

Deprecated function: Optional parameter $input declared before required parameter $form_state is implicitly treated as a required parameter in include_once() (line 1442 of /home/stihi/stihi-russkih-poetov.ru/http/includes/bootstrap.inc).
OIRO £150,000

Freehold garage - parking, storage or investment.

Large garage 5m(W)x10m(L)x2.7m(H) (50 sqm / 540 sqft) in Edmonton, N9 0JG.

Big enough for 4 cars or 2 vans. Gated entry off Exeter Road (near Exeter Road / Monmouth Road crossing), safely tucked away from sight behind residential properties. Additional space in front can be used for parking. No electricity, no water and no business rates.

  • Garage Plan
  • Map view
OIRO £150,000

Freehold garage/workshop with small yard at the back for sale at Alexandra Rd, Rainham RM13 7AE

OIRO £50,000

Freehold garage for sale in Muswell Hill, Alexandra Rd N10 2ES. Offers in the region of £50,000.

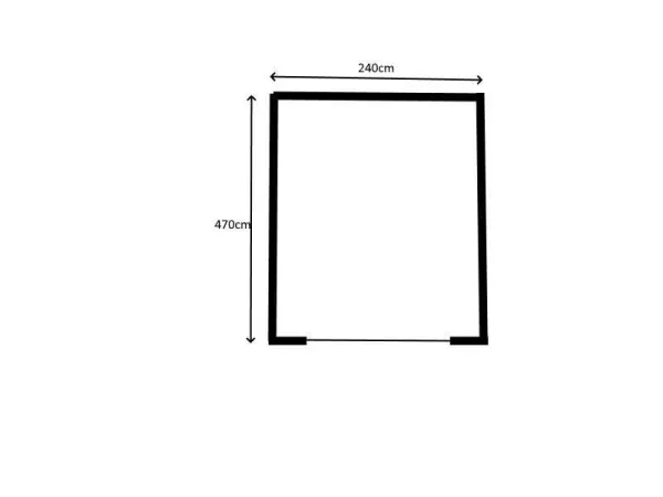
Suitable for parking, storage or investment. Internal dimensions are 4.70m x 2.40m (~15.4 x 7.9 ft). No power and no water. 24 hour access subject to usual noise restrictions. The garage is dry and can be used for storage or parking or could be rented out for ~£200 per month producing nearly passive income.

New door installed October 2017 with 10 years warranty.

  • Garage floor plan
£27,500

Freehold garage - parking, storage or investment.

Single garage measured 480x240cm for sale in Romford, RM5 2HU.

Freehold with no ground rent, business rates, council tax or maintenance charges to pay. Please note that this offer is for cash buyers only not because there's something wrong with the property, but simply because banks are not familiar with this kind of real estate and would not be willing to accept it as a security for a mortgage. The garage has its own separate freehold title.

  • Google Earth view
  • Site plan
  • Floor plan